- Lőket (m): 3 m
- Teherbírás (kg): 1000 kg
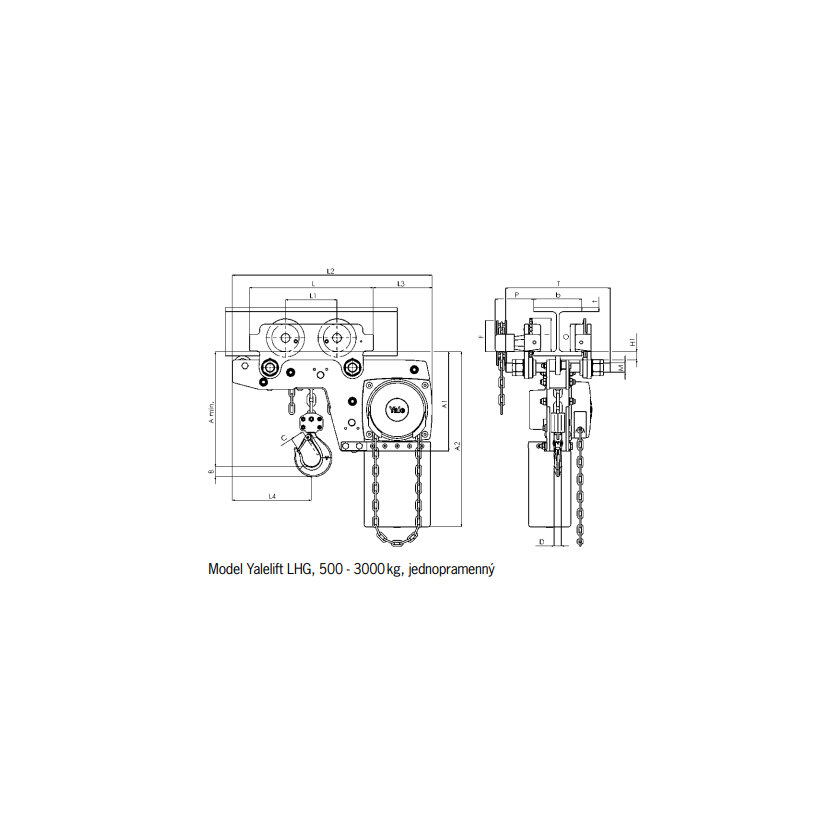
Yale Kézi láncos csigasor Yalelift LHG - A kocsi 500kg
A Yalelift LHG modellű kézi láncos csigasor alacsony építési magasságú integrált meghajtással egy továbbfejlesztett Yalelift IT-modell. Mutass többet
A képek illusztratívak
Kézi láncos csigasor Yalelift LHG - A kocsi 500kg
Kézi láncos csigasor Yalelift LHG - A kocsi
Teherbírás: 500 kg
A Yalelift LHG modellű kézi láncos csigasor alacsony építési magasságú integrált meghajtással egy továbbfejlesztett Yalelift IT-modell. Mindenhol, ahol még alacsonyabb építési magasságra van szükség, a Yalelift LH modell az ideális választás. A speciálisan kifejlesztett átirányítás és láncvezetés lehetővé teszi, hogy a teherhorgot az alsó gerendával a csigasor melletti oldalról felfelé a gerenda alá húzzuk. A jól bevált és gördülékeny beállítási rendszer lehetővé teszi a hajtás gyors és egyszerű összeszerelését. A kerekek a gerendakarima maximum 14%-os lejtésére vannak méretezve, az optimális menettulajdonságokat a tartós kenéssel ellátott zsebes golyóscsapágyak garantálják. A csigasor kiváló gördülési tulajdonságokkal rendelkezik a zsírozott és tömített golyóscsapágyakra szerelt acélkerekeknek köszönhetően.
Jellemzők:
- Az LH sorozat minden modellje 3000 kg teherbírásig egy szál lánccal van felszerelve.
- Az 5000 kg teherbírástól kezdődő modellek kétszálú lánccal rendelkeznek.
- A kocsikat 5000 kg teherbírásig a gerendakarima két szélességéhez kínáljuk, A típust 180 mm-ig terjedő karimaszélességig és B típust 300 mm-es szélességig.
- A Yalelift IT alacsony építési magasságú változata különböző gerendaprofilokhoz (pl. INP, IPE, IPB) állítható.
- A szállítmány része egy leesés és felborulás elleni berendezés.
Ezek az emelőeszközök nem személyek szállítására szolgálnak!
Műszaki adatok:
- Teherbírás: 500 kg
- Emelés: 3 m
- Kocsi: 60 - 180 mm
- Súly normál emelésnél: 27 kg
- Láncszálak száma: 1
Műszaki paraméterek
- Lőket (m)3 m
- Teherbírás (kg)500 kg
- Súly normál 3 m-es emelésnél27 kg
- Láncszálak száma1
- KocsiA típus - 60-180 mm
- Változatok3m,500kg


